12 ДД

Чертеж изделия:
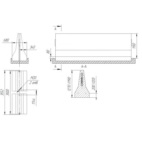
Характеристики изделия:
ПараметрЗначение
длина3550 мм
ширина680 мм
высота1190 мм
масса6250 кг
нормативный документТУ 5899-002-61548960-2010

12 ДД  Блоки парапетного двухстороннего стационарного ограждения по ТУ 5899-002-61548960-2010.