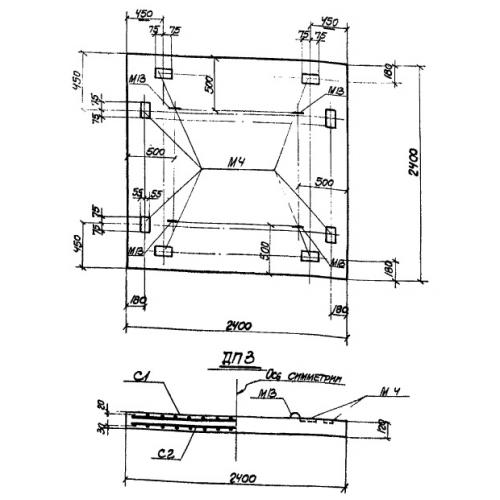
ДП 3

Чертеж изделия:
Характеристики изделия:
ПараметрЗначение
длина2400 мм
ширина2400 мм
высота120 мм
вес1700 кг
серияТП 905-7

ДП 3 Плиты днища прямоугольные по проекту ТП 905-7.