Ф

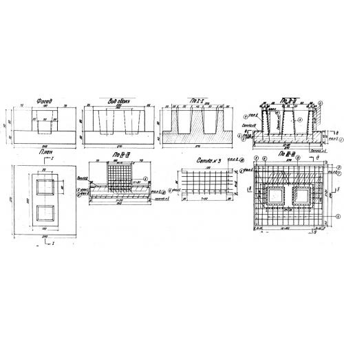
Чертеж изделия:
Характеристики изделия:
ПараметрЗначение
длина2400 мм
ширина2700 мм
высота1300 мм
масса10800 кг
нормативный документТП 501-166

Ф  Фундаменты по Типовому проекту ТП 501-166.