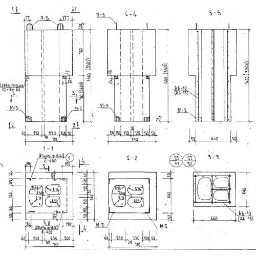
ВШ-7 вентшахты

Чертеж изделия:
Характеристики изделия:
ПараметрЗначение
длина710 мм
ширина740 мм
высота3300 мм
масса1368 кг
нормативный документСерия Б1.134.1-7

ВШ-7 Армированные вентиляционные шахты из бетона по Серии Б1.134.1-7.