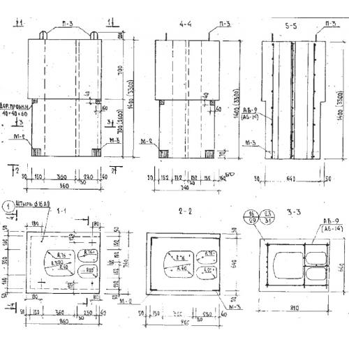
ВШ-1 вентшахты

Чертеж изделия:
Характеристики изделия:
ПараметрЗначение
длина860 мм
ширина740 мм
высота1400 мм
масса672 кг
нормативный документСерия Б1.134.1-7

ВШ-1 Армированные вентиляционные шахты из бетона по Серии Б1.134.1-7.