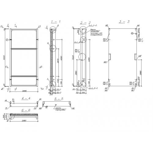
ПС стеновая панель рядовая
Характеристики изделия:
| Параметр | Значение |
|---|---|
| длина | 2980 мм |
| ширина | 545 мм |
| высота | 6220 мм |
| масса | 4760 кг |
| нормативный документ | Серия 7018-М |
Цена:
Рассчитать стоимостьПС Панели стеновые рядовые по Серии 7018-М.
| Параметр | Значение |
|---|---|
| длина | 2980 мм |
| ширина | 545 мм |
| высота | 6220 мм |
| масса | 4760 кг |
| нормативный документ | Серия 7018-М |
ПС Панели стеновые рядовые по Серии 7018-М.
