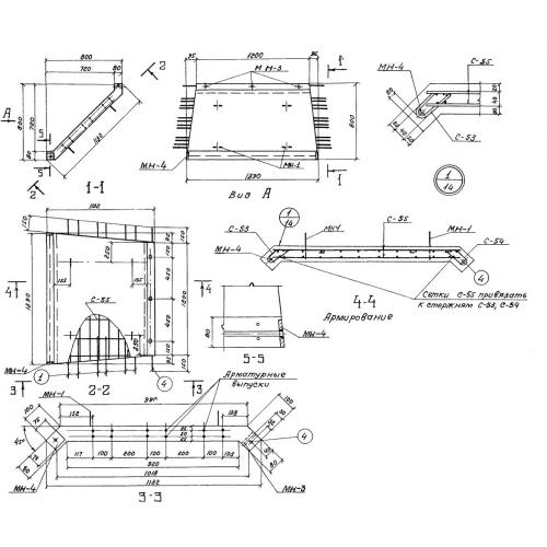
ЛТ 3-8 Лотки угловые для цилиндрических сооружений
Характеристики изделия:
| Параметр | Значение |
|---|---|
| длина | 1390 мм |
| ширина | 1132 мм |
| высота | 128 мм |
| масса | 300 кг |
| нормативный документ | Серия 3.900.-3 |
Цена:
Рассчитать стоимостьЛТ 3-8 Лотковые элементы по Серии 3.900.-3.
