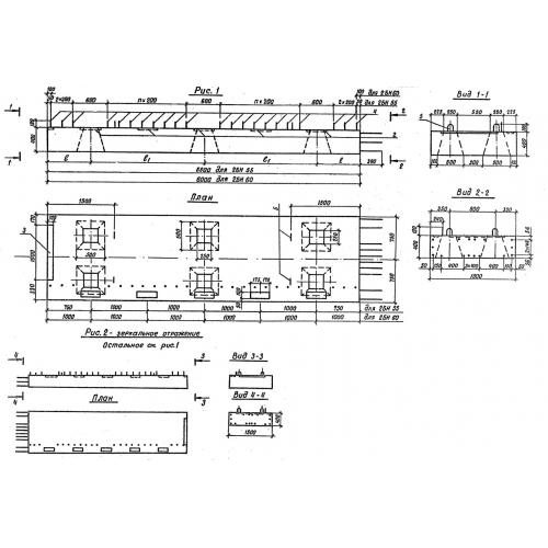
3БН 55

Чертеж изделия:
Характеристики изделия:
ПараметрЗначение
длина5500 мм
ширина1200 мм
высота500 мм
вес7300 кг
серия3.503.1-79

3БН 55 - блоки насадок.   Насадки на сваи по серии 3.503.1-79.