БН 1.276

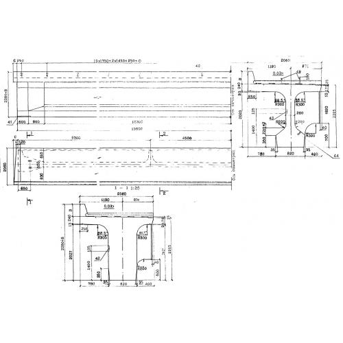
Чертеж изделия:
Характеристики изделия:
ПараметрЗначение
длина27600 мм
ширина2060 мм
высота2630 мм
вес100500 кг
серия3.501.1-175.93

БН 1.276 Балки ребристые из предварительно напряженного железобетона по серии 3.501.1-175.93.