БН 1.165

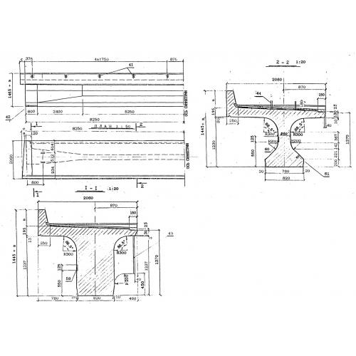
Чертеж изделия:
Характеристики изделия:
ПараметрЗначение
длина16500 мм
ширина2060 мм
высота1995 мм
вес46600 кг
серия3.501.1-175.93

БН 1.165 Балки ребристые из предварительно напряженного железобетона по серии 3.501.1-175.93.