СТ 271.3.5

Чертеж изделия:
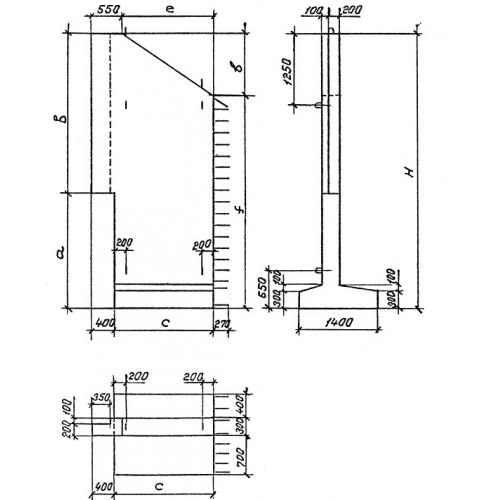
Характеристики изделия:
ПараметрЗначение
длина2160 мм
ширина1400 мм
высота6300 кг
масса9800 кг
нормативный документСерия 3.501.1-126

СТ 271.3.5  Блоки откосных стенок Серия 3.501.1-126.