ЛМР 58.12.18

Чертеж изделия:
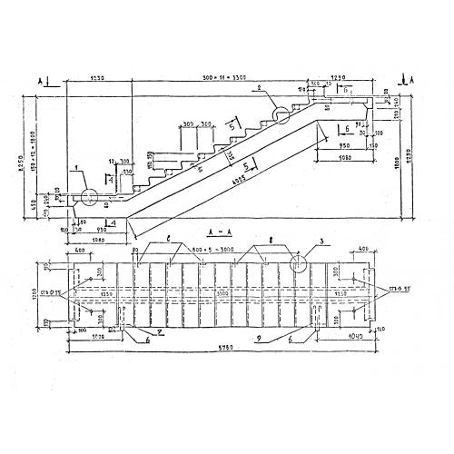
Характеристики изделия:
ПараметрЗначение
длина5760 мм
ширина1200 мм
высота2250 мм
масса3175 кг
нормативный документСерия 1.258 КЛ-2

ЛМР 58.12.18  Лестничные марш-площадки Серия 1.258 КЛ-2.