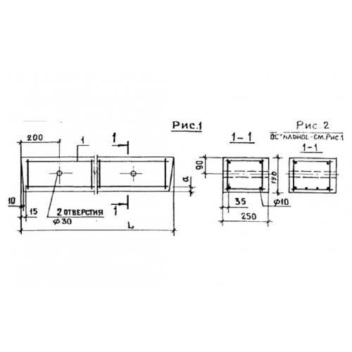
БУ 19

Чертеж изделия:
Характеристики изделия:
ПараметрЗначение
длина1950 мм
ширина250 мм
высота190 мм
вес230 кг
серия1.139-1

БУ 19 Перемычки брусковые усиленные по серии 1.139-1.