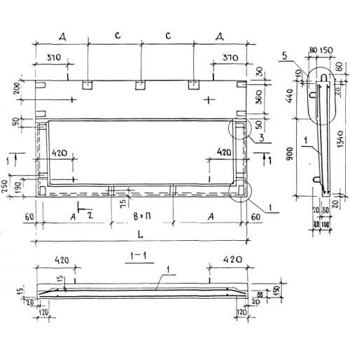
ПБ 33-6

Чертеж изделия:
Характеристики изделия:
ПараметрЗначение
длина3290 мм
ширина1340 мм
высота150 мм
масса1315 кг
нормативный документСерия 1.137-3

ПБ 33-6  Плиты балконные Серия 1.137-3.