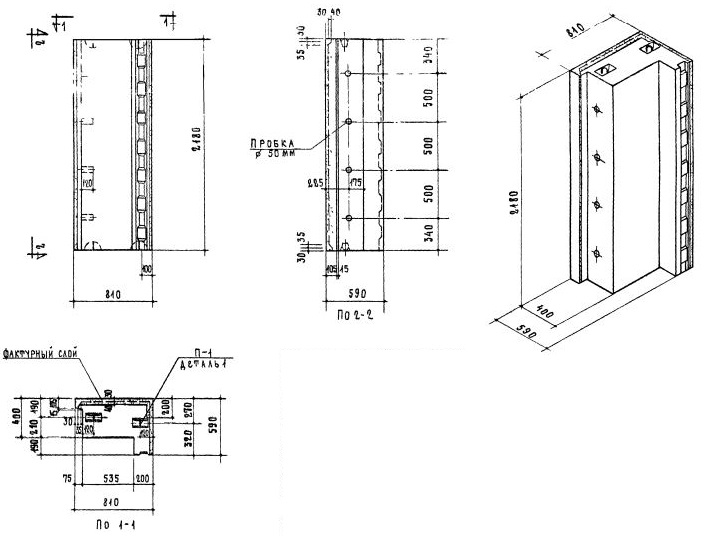
НБУ-7/6.22.4-3

Чертеж изделия:
Характеристики изделия:
ПараметрЗначение
Длина810 мм
Ширина590 мм
Высота2180 мм
Масса1440 кг
Нормативный документСерия 1.133-1

Стеновые легкобетонные блоки толщиной 40 см по Серии 1.133-1.

НБУ-7/6.22.4-3  Простеночный блок температурного шва.