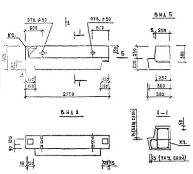
РЛП 4.26 ригели

Чертеж изделия:
Характеристики изделия:
ПараметрЗначение
длина2560 мм
ширина382 мм
высота450 мм
масса840 кг
нормативный документСерия 1.020-1/87

РЛП 4.26   Ригели однополочные, устанавливаемые в лестничных клетках для опирания многопустотных плит и лестнечных маршей, Серия 1.020-1/87.