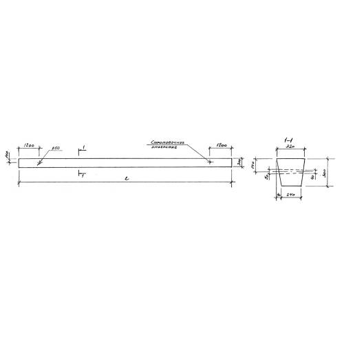
5БФ 111 балки фундаментные

Чертеж изделия:
Характеристики изделия:
ПараметрЗначение
длина11050 мм
ширина320 мм
высота300 мм
масса2300 кг
нормативный документСерия 1.015.1-1.95

5БФ 111  Балки фундаментные Серия 1.015.1-1.95.