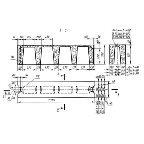
ФБП 24.6.6 пустотные фундаментные блоки

Чертеж изделия:
Характеристики изделия:
ПараметрЗначение
длина2380 мм
ширина600 мм
высота580 мм
масса1400 кг
нормативный документГОСТ 13579-78

ФБП 24.6.6  Фундаментные блоки пустотные ГОСТ 13579-78.